当前位置:首页> 政务公开> 最新文件

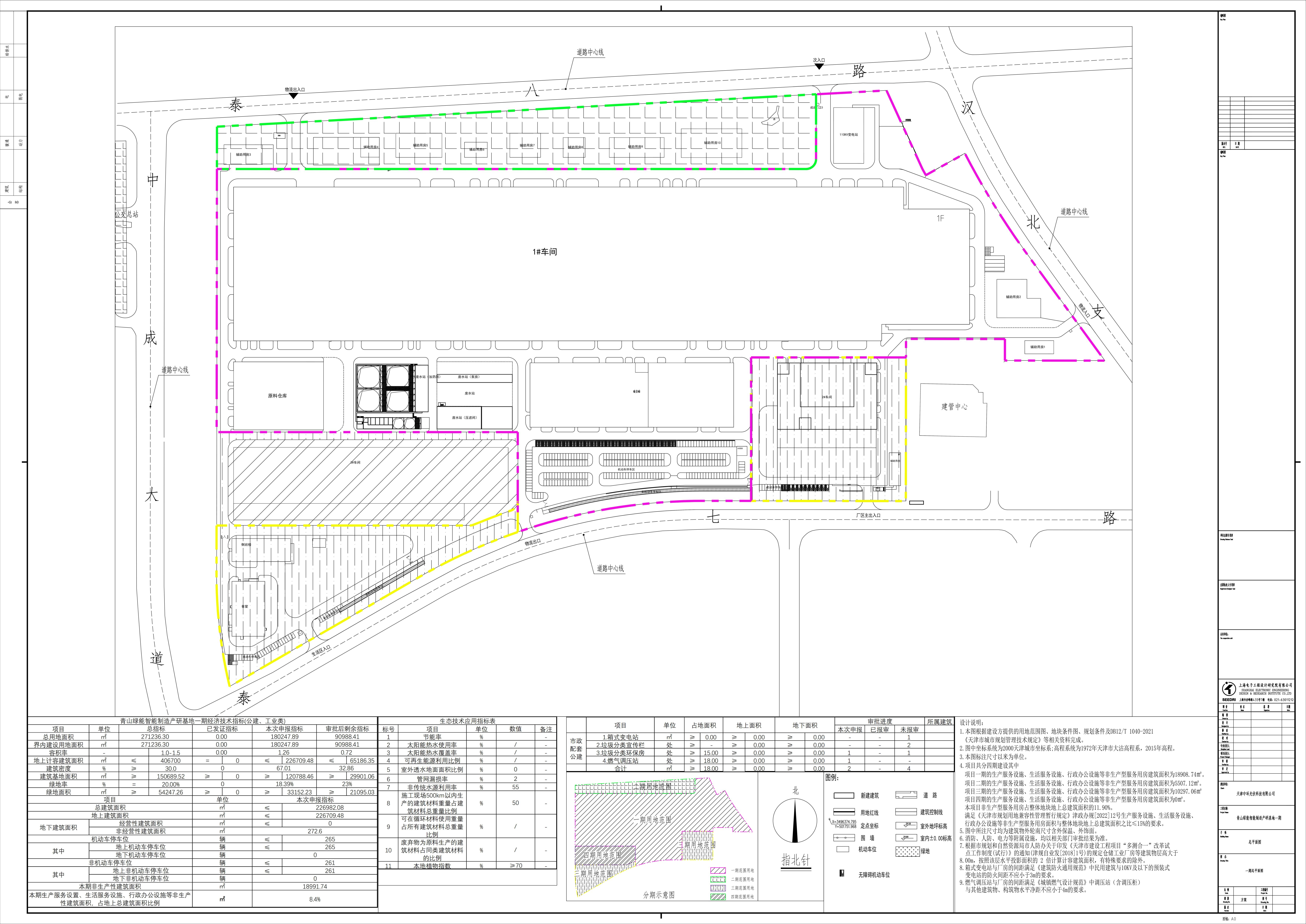
青山绿能智能制造产研基地一期方案公示的通知
发布日期: 2024-06-25 17:07      来源: 中新天津生态城
字号:
  • 扫一扫在手机打开当前页

    依据《中华人民共和国城乡规划法》和《关于印发<天津市城乡规划公开实施方案>的通知》的有关要求,现将青山绿能智能制造产研基地一期方案进行公告,征求利害关系人意见。公告时间为7个工作日(2024年6月25日- 2024年7月3日),公告期限内,利害关系人可以书面等法定形式向我局进行陈述,申辩等主张或提出听证。


    主办单位:中新天津生态城管理委员会
    网站标识码:1201160010  |  备案序号:津ICP备09004013号  |   津公网安备 12019502000004
    联系方式:public@eco-city.gov.cn | 推荐使用IE8及以上版本浏览器浏览

    主办单位:中新天津生态城管理委员会
    网站标识码:1201160010
    备案序号:津ICP备09004013号
     津公网安备 12019502000004
    联系方式:public@eco-city.gov.cn | 推荐使用IE8及以上版本浏览器浏览