当前位置:首页> 政务公开> 最新文件

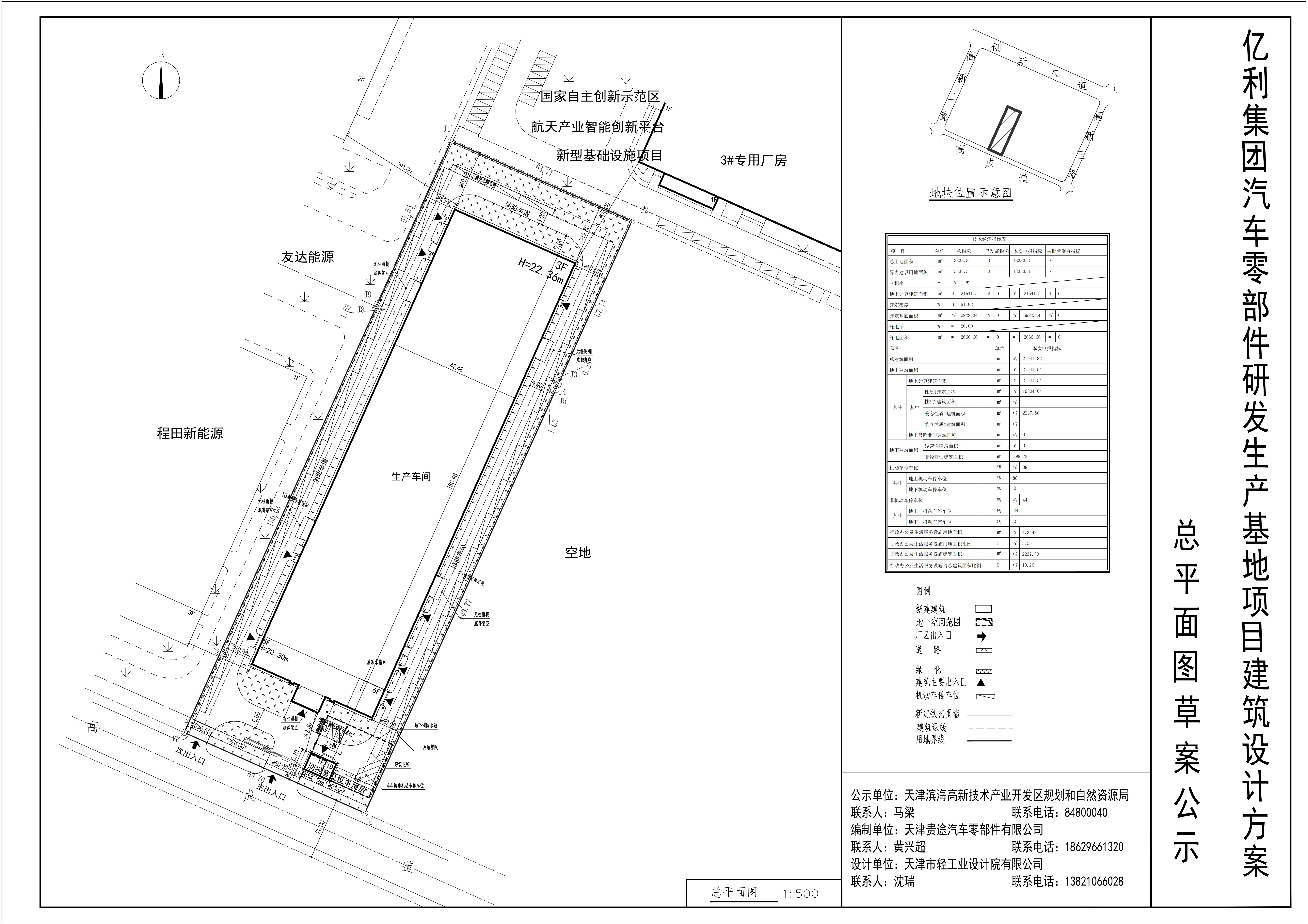
亿利集团汽车零部件研发生产基地项目建筑设计草案公示图
发布日期: 2024-06-14 15:02      来源: 天津滨海高新技术产业开发区
字号:
  • 扫一扫在手机打开当前页

    依据《中华人民共和国城乡规划法》和住建部《关于城乡规划公开公示的规定》的有关要求,现将亿利集团汽车零部件研发生产基地项目建筑设计草案公示,公示时间共7个工作日。




    天津滨海高新技术产业开发区管理委员会

    规划和自然资源局

    2024年6月14日

    主办单位:天津滨海高新技术产业开发区
    网站标识码:1201160063  |  备案序号:津ICP备09000137号-4  |   津公网安备 12019202000211
    联系方式:gxqwxb@tht.gov.cn | 推荐使用IE8及以上版本浏览器浏览

    主办单位:天津滨海高新技术产业开发区
    网站标识码:1201160063
    备案序号:津ICP备09000137号-4
     津公网安备 12019202000211
    联系方式:gxqwxb@tht.gov.cn | 推荐使用IE8及以上版本浏览器浏览