| 关于大港街迎宾街以东片区城市更新项目(住宅二期)(13#~25#、配建3、围墙、大门、地下车库)建筑设计方案总平面图(调整)的公示 |
依据《中华人民共和国城乡规划法》和住房和城乡建设部《关于城乡规划公开公示的规定》的有关要求,现将大港街迎宾街以东片区城市更新项目(住宅二期)(13#~25#、配建3、围墙、大门、地下车库)建筑设计方案总平面图进行公示。
公示时间为2025年9月19日至2025年9月28日,为期七个工作日。
项目名称:大港街迎宾街以东片区城市更新项目(住宅二期)(13#~25#、配建3、围墙、大门、地下车库)
项目位置:大港街迎宾街以东
建设单位:天津滨海建投慧康城市更新建设发展有限公司
设计单位:天津市建筑设计院有限公司
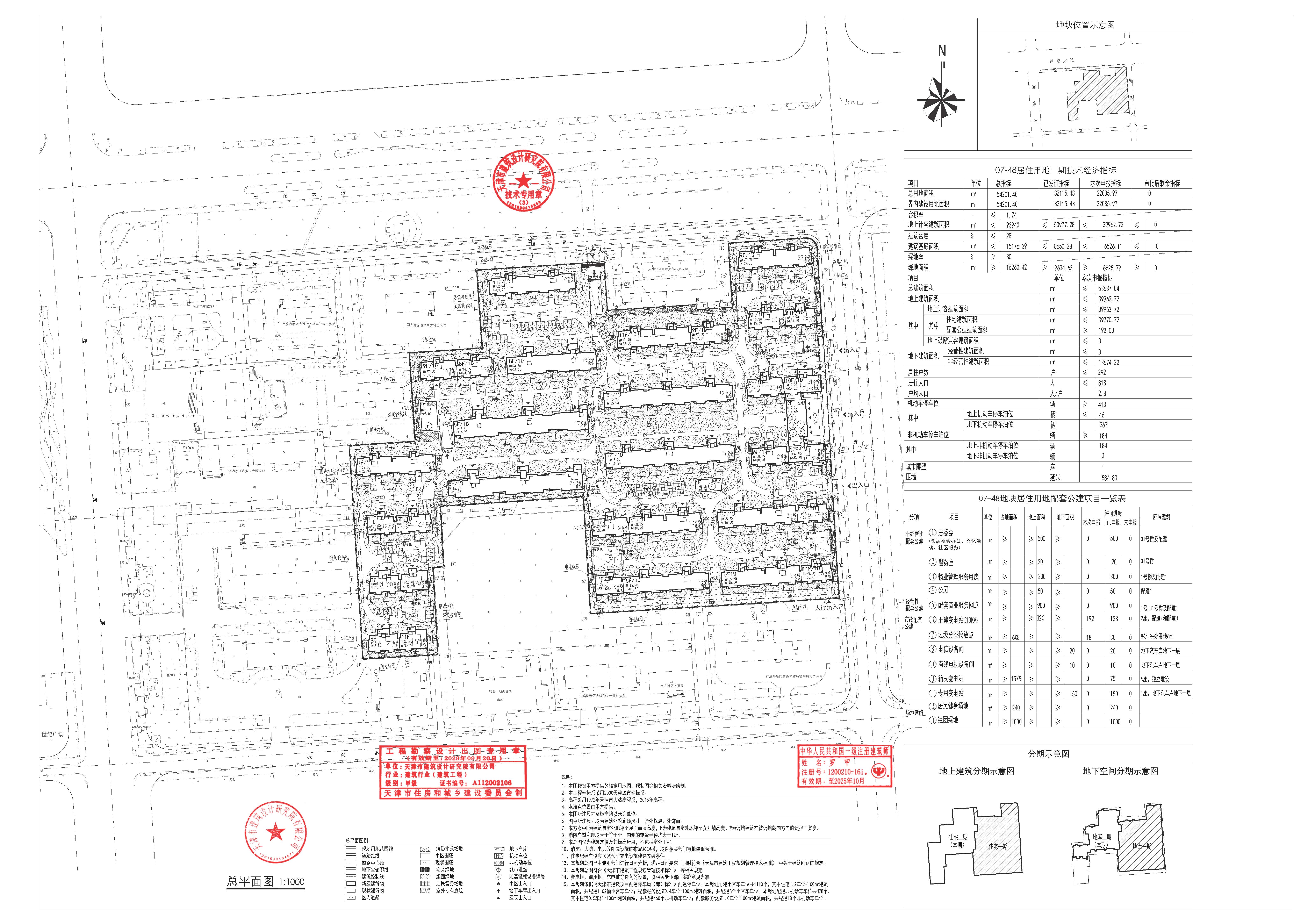
项目简介(变更说明):调整地库南侧轮廓线,地下建筑面积由14549.32平方米调整为13674.32平方米,总建筑面积由54512.04平方米调整为53637.04平方米。
本次调整仅限上述变化,项目其余设计内容保持原审定成果不变。
公示期间,周边单位及个人如对公示内容发表意见,请以电子邮件或电话方式反馈。
信函请寄:滨海新区于家堡融和路681号宝策大厦裙房行政许可服务中心
邮编:300450
联系人:邢燕
联系电话:022-66897974 (接听时间为 8:30—12:00,13:30-17:30)
邮 箱:gzjbhxqgs@163.com
天津市规划和自然资源局滨海新区分局
2025年9月19日
附图:建筑设计方案总平面图

主办单位:天津市规划和自然资源局滨海新区分局
推荐使用IE8及以上版本浏览器浏览
网站标识码:1201160001
联系方式:022-66223565