| 关于中华人民共和国南疆出入境边防检查站业务技术用房维修改造项目建筑设计方案总平面图的公示 |
依据《中华人民共和国城乡规划法》和住房和城乡建设部《关于城乡规划公开公示的规定》的有关要求,现将中华人民共和国南疆出入境边防检查站业务技术用房维修改造项目建筑设计方案总平面图进行公示。
公示时间为2025年7月22日至2025年7月30日,为期七个工作日。
项目名称:中华人民共和国南疆出入境边防检查站业务技术用房维修改造项目
项目位置:天津市滨海新区南疆片区
建设单位:中华人民共和国南疆出入境边防检查站
设计单位:天津天咨拓维建筑设计有限公司
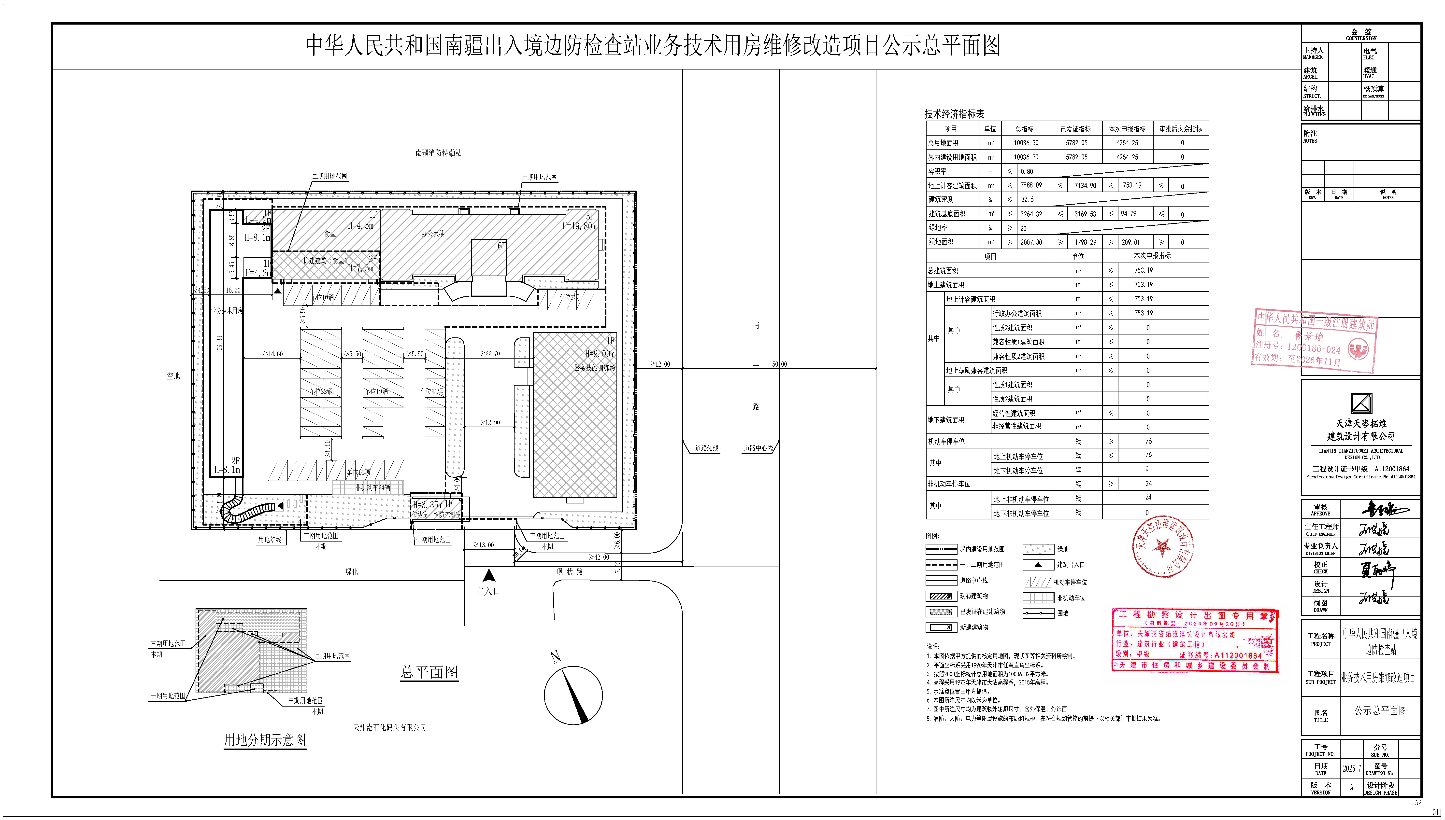
项目简介:1、项目位于天津市滨海新区南疆片区;北临现状厂区,南临现状厂区,西临待开发用地,东临南一路。
2、中华人民共和国南疆出入境边防检查站业务技术用房维修改造项目指标为:总用地面积10036.3㎡,界内建设用地面积10036.3㎡,容积率≤1,地上计容建筑面积7888.09㎡,建筑密度≤40%,绿地率≥20%,绿地面积2007.30㎡。
公示期间,周边单位及个人如对公示内容发表意见,请以电子邮件或电话方式反馈。
信函请寄:滨海新区于家堡融和路681号宝策大厦裙房行政许可服务中心
邮编:300450
联系人:许冬雪
联系电话:022-66897974 (接听时间为 8:30—12:00,14:30-17:30)
邮 箱:gzjbhxqgs@163.com
天津市规划和自然资源局滨海新区分局
2025年7月22日
附图:建筑设计方案总平面图

主办单位:天津市规划和自然资源局滨海新区分局
推荐使用IE8及以上版本浏览器浏览
网站标识码:1201160001
联系方式:022-66223565