| 关于大港油田天然气深冷提效工程-中控楼及分析化验室建筑设计方案总平面图的公示 |
依据《中华人民共和国城乡规划法》和住房和城乡建设部《关于城乡规划公开公示的规定》的有关要求,现将大港油田天然气深冷提效工程-中控楼及分析化验室建筑设计方案总平面图进行公示。
公示时间为2025年6月20日至2025年6月30日,为期七个工作日。
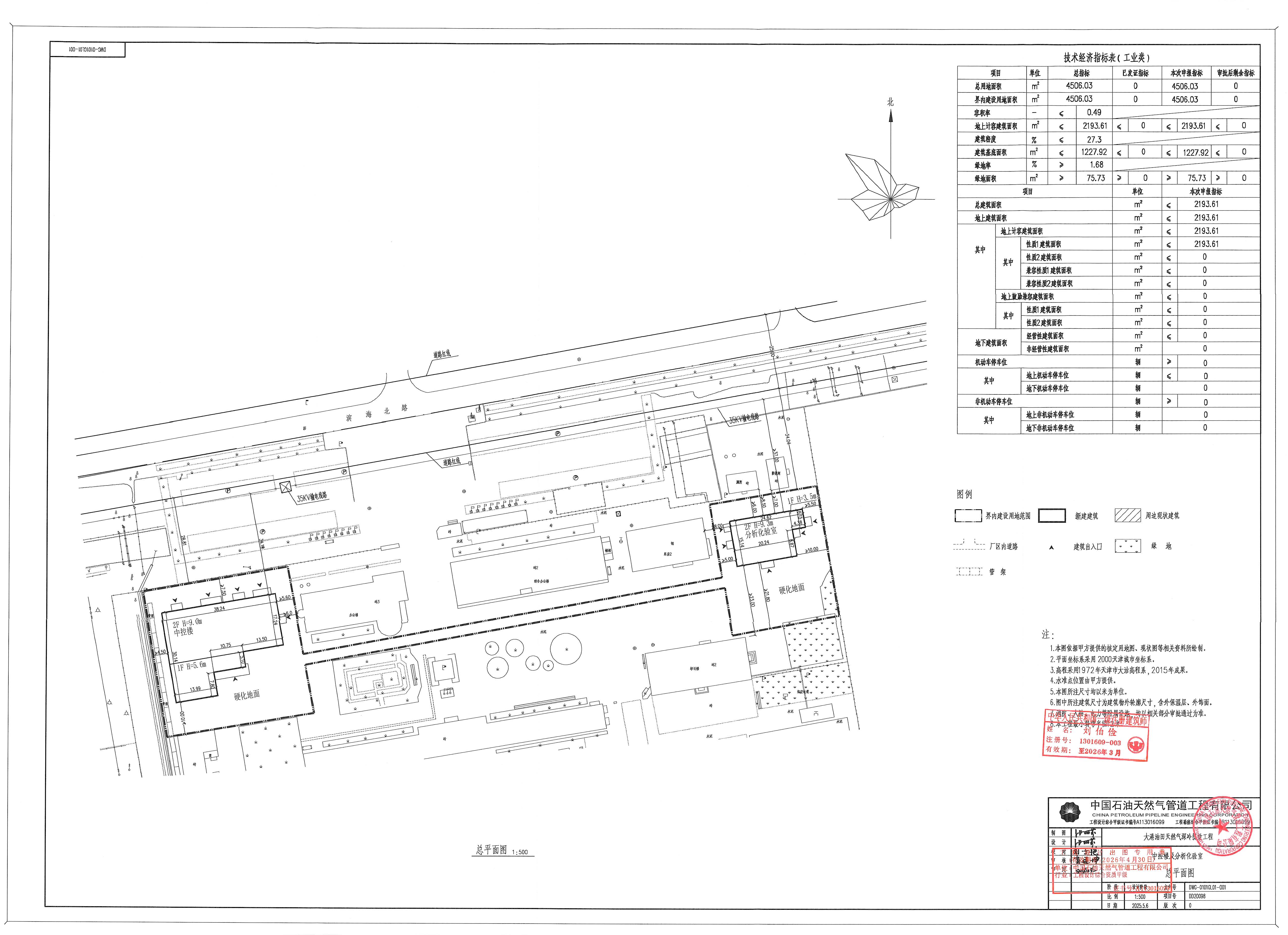
项目名称:大港油田天然气深冷提效工程-中控楼及分析化验室
项目位置:天津市滨海新区大港油田滨海北路以南,津岐公路以东2.5公里处天然气处理站院内
建设单位:大港油田集团有限责任公司
设计单位:中国石油天然气管道工程有限公司
项目简介:东至规划路西侧防护绿地,西至大港油田热电厂东侧防护绿地,南至 创业路北侧防护绿地,北至滨海北路南侧防护绿地,用地面积4506.03平方米。
建设规模及主要建设内容:
本次新建两个单体,分别为中控楼、分析化验室。
其中:中控楼,共2层,建筑高度9.0米,建筑面积1553.81平方米;
分析化验室,共2层,建筑高度9.3米,建筑面积639.80平方米。
公示期间,周边单位及个人如对公示内容发表意见,请以电子邮件或电话方式反馈。
信函请寄:滨海新区于家堡融和路681号宝策大厦裙房行政许可服务中心
邮编:300450
联系人:姚文宇
联系电话:022-66897929 (接听时间为 8:30—12:00,13:30-17:30)
邮 箱:gzjbhxqgs@163.com
天津市规划和自然资源局滨海新区分局
2025年6月20日
附图:建筑设计方案总平面图

主办单位:天津市规划和自然资源局滨海新区分局
推荐使用IE8及以上版本浏览器浏览
网站标识码:1201160001
联系方式:022-66223565