| 关于滨海新区汉沽中医医院门急诊楼改扩建工程建筑设计方案总平面图(调整)的公示 |
依据《中华人民共和国城乡规划法》和住房和城乡建设部《关于城乡规划公开公示的规定》的有关要求,现将滨海新区汉沽中医医院门急诊楼改扩建工程建筑设计方案总平面图进行公示。
公示时间为2025年3月13日至2025年3月21日,为期七个工作日。
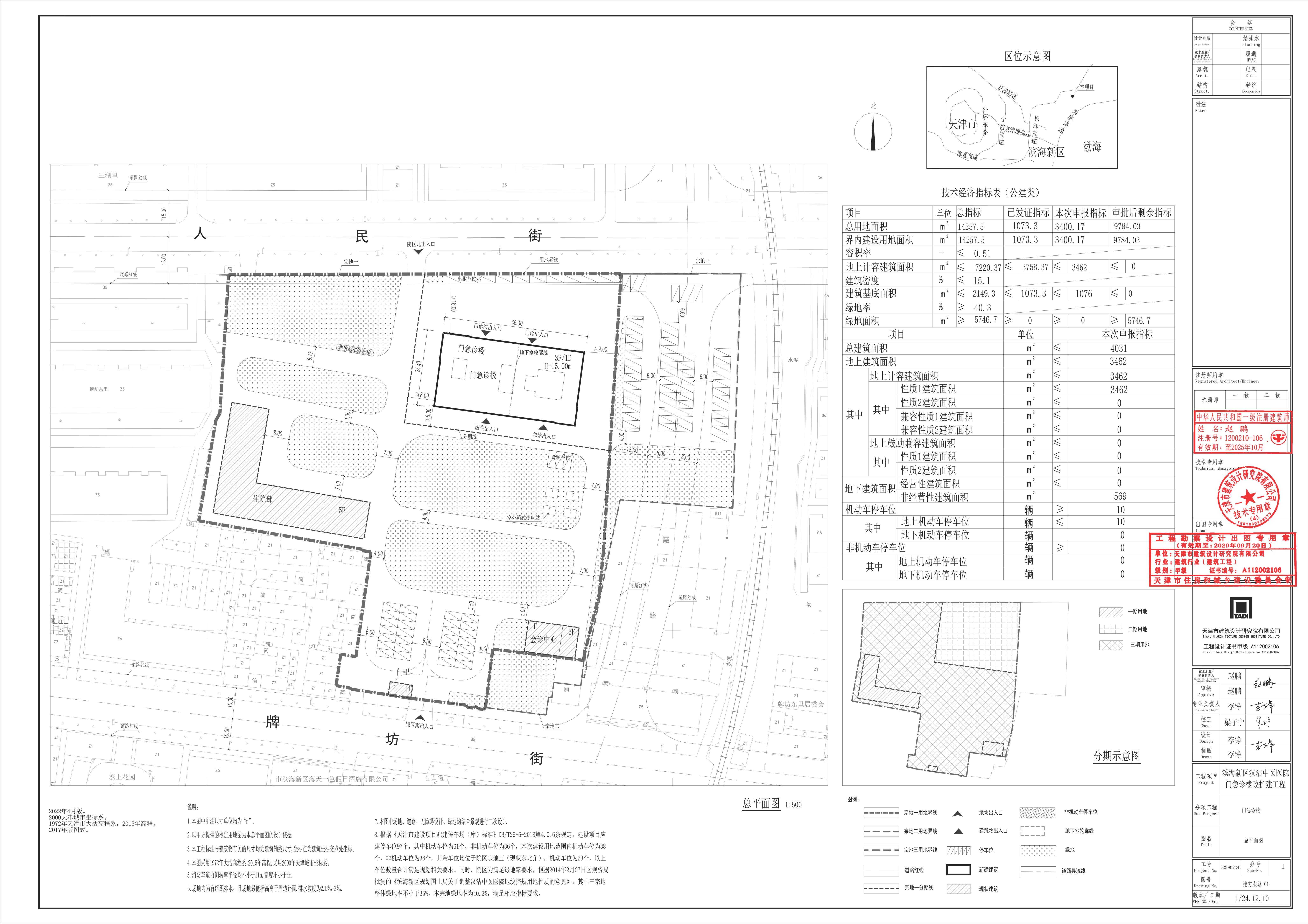
项目名称:滨海新区汉沽中医医院门急诊楼改扩建工程
项目位置:天津市滨海新区汉沽牌坊街38号
建设单位:天津市滨海新区汉沽中医医院
设计单位:天津市建筑设计研究院有限公司
项目简介(变更说明):拟在地块内预留用地拟新建一座门急诊楼,将原五层门急诊楼调整为三层,原因为由于区域内就诊人群减少,区域周边已经建成综合实力更强的中医医院,汉沽中医医院优化了改扩建方案,按照2024年11月7日(第74次)区长办公会同意滨海新区汉沽中医医院门急诊楼改扩建工程缩减建设规模的会议纪要,缩减了门急诊楼建设规模,建筑面积将由原建筑面积6269㎡(地上5700㎡,地下569㎡)调整为4031㎡(地上3462㎡,地下569㎡);相应减少配建机动车、非机动车停车数量。
公示期间,周边单位及个人如对公示内容发表意见,请以电子邮件或电话方式反馈。
信函请寄:滨海新区于家堡融和路681号宝策大厦裙房行政许可服务中心
邮编:300450
联系人:许冬雪
联系电话:022-66897974 (接听时间为 8:30—12:00,13:30-17:00)
邮 箱:gzjbhxqgs@163.com
天津市规划和自然资源局滨海新区分局
2025年3月13日
附图:建筑设计方案总平面图

主办单位:天津市规划和自然资源局滨海新区分局
推荐使用IE8及以上版本浏览器浏览
网站标识码:1201160001
联系方式:022-66223565