当前位置:首页> 政务公开> 最新文件

阿里巴巴考拉海购华北智慧物流中心项目总平面图公布通知
发布日期: 2020-10-19 17:12      来源: 东疆保税港区
字号:
  • 扫一扫在手机打开当前页

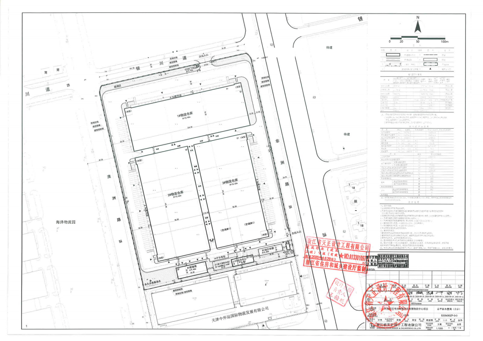
    阿里巴巴考拉海购华北智慧物流中心项目平面图已于2020930日经天津东疆保税港区规划国土和建设管理局审定,根据《城乡规划法》的有关规定,现将方案总平面图予以公告。

    附图:阿里巴巴考拉海购华北智慧物流中心项目总平面

                  东疆保税港区规建局

    20201019




    附图:阿里巴巴考拉海购华北智慧物流中心.jpg



    主办单位:天津东疆综合保税区管理委员会
    网站标识码:1201160033  |  备案序号:津ICP备11002405号-1  |   津公网安备 12019302000113
    联系方式:info@dongjiang.gov.cn | 推荐使用IE8及以上版本浏览器浏览

    主办单位:天津东疆综合保税区管理委员会
    网站标识码:1201160033
    备案序号:津ICP备11002405号-1
     津公网安备 12019302000113
    联系方式:info@dongjiang.gov.cn | 推荐使用IE8及以上版本浏览器浏览